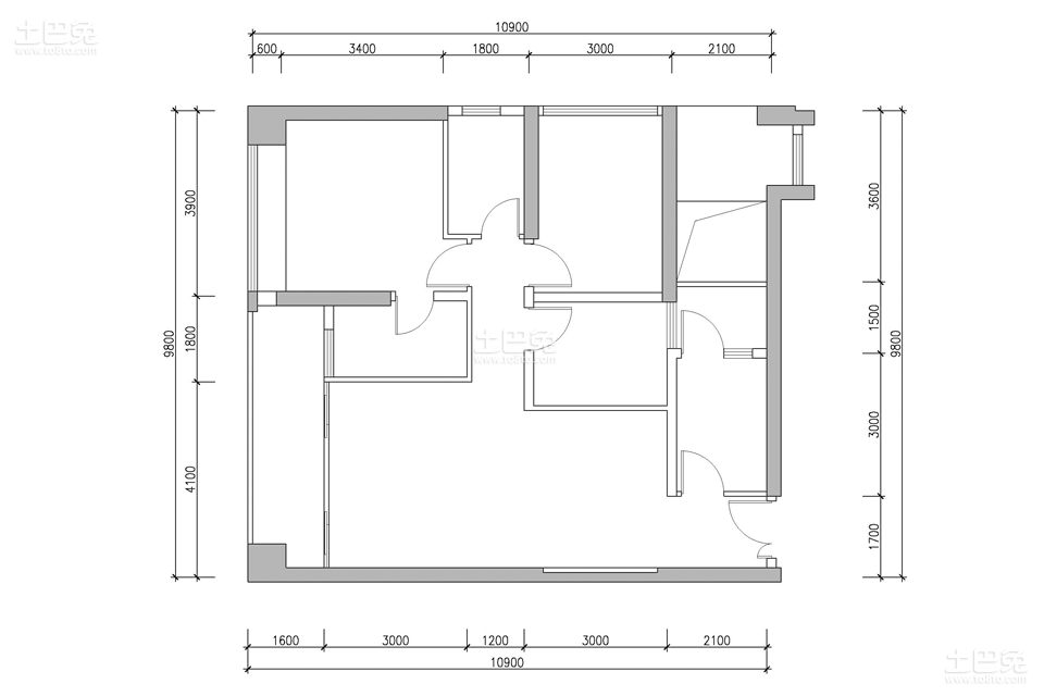
戶(hù)型:三居 3#D戶(hù)型
-
日期:2016-04-28
-
點(diǎn)擊:820
戶(hù)型:三居 3#D戶(hù)型
設計效果圖:



提交信息,試試看!
已有92人提交



北京